Introduction
Features
Gallery
Floor Plan
Location


2-Storey Terrace Houses
From RM425,000 onwards
A Pasir Gudang Property to Call Home
If you are on the hunt for a new property in Pasir Gudang because of its amazing access to Johor Bahru and other popular hotspots, then you should opt for one at Meridin East. Currently, the new properties in Pasir Gudang at Meridin East have so much to offer and are ideal for families and professionals alike. You will feel right at home at Meridin East with its new housing development currently underway, such as Acacia and Erica.
Pasir Gudang New Property Launch to Fit for Every Lifestyle & Personality
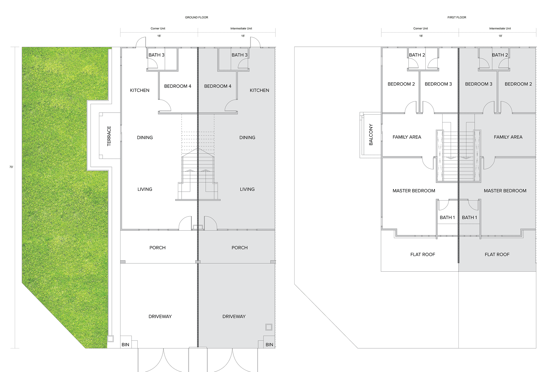
Meridin East features freehold landed double-storey terrace houses that epitomise the ideals of an ultramodern luxury lifestyle that you desire at an affordable price that starts from RM440,000.
A double-storey terrace in Meridin East starts from a spacious 1,601 sq ft in size and is designed to be an open canvas for you to create the living spaces that make your house a true dream home for you and your family.
These well-thought-of housing projects in Pasir Gudang consist of 4 bedrooms and 3 bathrooms that allow you to etch your own personality and creativity into your sanctuary.
A Pasir Gudang House for Sale that Offers Great Security
If security is one of your main concerns when it comes to choosing your Pasir Gudang home, then look no further than Meridin East.
The Meridin East Pasir Gudang new housing projects, namely Acacia and Erica, are strategically situated in a 1,313-acre gated lake garden community with security control at their main entrances, 24-hour guarded security with CCTV surveillance in every precinct as well as neighbourhood guard patrol for that extra peace of mind.
Pasir Gudang New Housing Project that Offers Wholesome Living with Community Lifestyle Amenities
Meridin East consists of ample lush greenery and areas for the community to gather and bask in the outdoors, such as a 9-acre lake park, designated jogging and cycling lanes, as well as play parks that both young and old can enjoy.
It is a Pasir Gudang new development like no other that offers a seamless floor plan combining the best of indoor and outdoor living, providing every resident with a lifestyle full of recreation and leisure.
Location
Sales Gallery @ Meridin East
Jalan Kong Kong, 81750 Pasir Gudang, Johor.
Meridin East +607 291 3218
E: Sales.Enquiryjb@staging.mahsing.com.my
Get the Inside Scoop! Register Now to Download Our Brochure
Top Search:
NATIONALITY: Malaysian
DATE OF APPOINTMENT: 1 August 2023
ACADEMIC / PROFESSIONAL QUALIFICATION(S)
Admiral (R) Tan Sri Dato’ Seri Abu Bakar Bin Abdul Jamal was the 10th Chief and the first four-star Admiral of the Royal Malaysian Navy. Admiral (R) Tan Sri Abu Bakar served the Royal Malaysian Navy for almost 40 years both at the staff and command levels culminating in the highest office of The Chief of Navy from 1998 to 2002.
Admiral (R) Tan Sri Abu Bakar was the former Chairman of Affin Fund Management Berhad and also the former Chairman of several companies covering diverse industries post his retirement including naval and marine, property development, construction and automative. He was also a former Board member of Lembaga Tabung Angkatan Tentera (Armed Forces Fund Board).
In recognition of his services not only to Malaysia but also towards promoting international and regional understanding and peace, Admiral (R) Tan Sri Abu Bakar was bestowed the Panglima Setia Mahkota award carrying the title Tan Sri. In addition, he also received international recognition in the form of the following awards:
There is no family relationship between him and any director and/or major shareholder of the Company.